世联集合肥 > 世联资讯 > 政策解读 > 合肥信达碧桂园底价优惠多少

合肥信达碧桂园底价优惠多少

发布时间:2025-05-08 13:32 来源:搜狐焦点合肥站

信达碧桂园楼盘电话号码:0551-68111601【营销中心】

欢迎来电咨询!可预约销售人员(来电尊享内部优惠活动)【2024房价特价信息丨底价优惠丨在售户型图丨项目介绍丨在售房源丨周边配套】

信达碧桂园位于肥东县酿泉路与日出路交口西北角,地理位置优越,交通便利,周边配套设施齐全。项目规划33栋住宅楼,包括28栋高层和5栋洋房,总占地面积165.59亩,适合居住。交付时间分为一期和二期,分别为2023年5月30日和2024年4月30日,为购房者提供明确期待。交付标准为毛坯,让购房者更加个性化和自由地进行装修。

信达碧桂园周边的生活配套设施也十分完善。交通方面,项目紧邻在建中的地铁2号线东延线,肥东高铁站,有轨电车规划中、裕溪路高架等多种交通方式,方便快捷地连接城市各个繁华地带。教育资源丰富,周边有多所幼儿园、小学和中学,医疗保障也不在话下,距离一级以上医院仅2.7公里。此外,商业设施和生态环境也是项目的亮点,让居民享受便捷的日常生活和优美的自然环境。

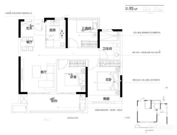
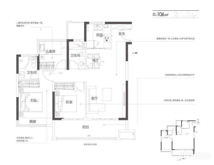
信达碧桂园的三室两厅一卫95㎡和105㎡、四室两厅两卫118㎡的房型,都采用方正、全明布局,阳光充足、通风性好。空间利用率高,实现“动静分区”,提高业主的居住舒适度。即使和老人同住,也能保持各自的私密空间,让每一位家庭成员都能享受到轻奢生活的乐趣。

信达碧桂园楼盘具体一房一价,详询营销中心。

信达碧桂园非常注重品质,建筑设计精良,采用优质材料,保证了房屋的质量和耐久性。项目内设有儿童乐园、健身房、社区花园等配套设施,为居民提供便利的生活体验。无论是儿童还是成人,都能在这里找到属于自己的乐园。

信达碧桂园作为肥东县的新地标,不仅地理位置优越,交通便利,周边配套设施齐全,还注重品质,提供多样化的户型选择,让购房者可以找到适合自己的理想家园。购房者不仅可以享受轻奢生活,还能在项目内的配套设施中找到便利的生活体验。信达碧桂园,值得您的关注和期待!

信达碧桂园楼盘电话号码:0551-68111601【营销中心】

欢迎来电咨询!可预约销售人员(来电尊享内部优惠活动)【2024房价特价信息丨底价优惠丨在售户型图丨项目介绍丨在售房源丨周边配套】

免责声明:此信息来源于搜狐焦点合肥站,版权归原作者。世联集旨在为广大用户提供更多的信息无偿服务,在网页上展示信息并不代表赞同其观点或证实其描述。文章内容仅供参考。如本网站转载的作品涉及版权问题,请与本网站联系进行删除处理。
将本文分享到

还在自己查房产知识?快找世联咨询师一对一沟通吧!

免费咨询

楼市变化多端?找不到心仪的楼盘? 世联集,专业为您服务

  •  获取验证码

合肥买房交流群(

138****8965已经申请

137****8955已经申请

157****4365已经申请

183****8115已经申请

187****5968已经申请

159****8233已经申请

申请入群

  •  获取验证码
    ×
    •  换一张
免责声明:本站楼盘信息旨在为用户提供更多信息的无偿服务,信息以政府部分登记备案为准。

注册 |登录

完善个人信息

登录 |注册 快捷登录 密码登录

  •  获取验证码
    ×
    •  换一张

找回密码 登录 注册

  •  获取验证码
    ×
    •  换一张

如有问题,可联系客服:0755-33526610

如有问题,可联系客服:0755-33526610

一键预约

  •  获取验证码

置业专家将在2小时内与您联系(8点-23点),请保持电话畅通。

验证提交

一键预约

置业专家将在2小时内与您联系(8点-23点),请保持电话畅通。

修改手机号

  •  获取验证码
    ×
    •  换一张

如当前手机号遗失,请联系0755-33526610进行人工修改

  •  获取验证码
    ×
    •  换一张

如当前手机号遗失,请联系0755-33526610进行人工修改