世联集合肥 > 世联资讯 > 业界动态 > 肥东信达碧桂园项目户型图-优惠

肥东信达碧桂园项目户型图-优惠

发布时间:2025-05-11 16:07 来源:搜狐焦点合肥站

信达碧桂园楼盘电话号码:0551-68111601【营销中心】

欢迎来电咨询!可预约销售人员(来电尊享内部优惠活动)【2024房价特价信息丨底价优惠丨在售户型图丨项目介绍丨在售房源丨周边配套】

信达碧桂园位于肥东县酿泉路与日出路交口西北角,地理位置优越,交通便利,周边配套设施齐全。项目规划33栋住宅楼,包括28栋高层和5栋洋房,总占地面积165.59亩,适合居住。交付时间分为一期和二期,分别为2023年5月30日和2024年4月30日,为购房者提供明确期待。交付标准为毛坯,让购房者更加个性化和自由地进行装修。

项目毗邻地铁2号线延长线,便利业主的日常出行;拥有惠宜品购物中心等繁华商业配套,满足业主的基本日常生活需求;同时,周边还有东城实验*、安师大附属*等丰富的教育资源,为孩子提供一站式教育体系。此外,和睦湖公园、肥东体育公园等生态资源,让业主在闲暇时能够享受自然景观,放松身心。

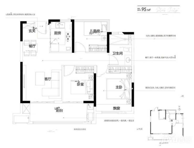
三室两厅一卫的95㎡和两卫的105㎡和四室两厅两卫的118㎡的房型,让您尽享轻奢生活!都是方正、全明布局的户型,阳光四季充足、通风性好;空间利用率高,让“动静分区”,提高业主的居住舒适度;即使和老人同住也不影响各自生活!

信达碧桂园楼盘具体一房一价,详询营销中心。

信达碧桂园注重品质,建筑设计精良,采用优质材料,保证房屋质量和耐久性。项目内设有儿童乐园、健身房、社区花园等配套设施,为居民提供便利的生活体验。这些设施为居民提供了休闲、娱乐和健身的场所,让居住者享受更加丰富多彩的生活。

信达碧桂园作为肥东县的新兴住宅项目,以其优越的地理位置、多样化的户型选择和注重品质的建筑设计,吸引了众多购房者的关注。无论是购房者的居住需求还是生活体验,信达碧桂园都能为他们提供理想的选择。希望信达碧桂园能成为更多家庭梦想的归宿,为他们营造一个舒适、便利、品质的家园。

信达碧桂园楼盘电话号码:0551-68111601【营销中心】

欢迎来电咨询!可预约销售人员(来电尊享内部优惠活动)【2024房价特价信息丨底价优惠丨在售户型图丨项目介绍丨在售房源丨周边配套】

免责声明:此信息来源于搜狐焦点合肥站,版权归原作者。世联集旨在为广大用户提供更多的信息无偿服务,在网页上展示信息并不代表赞同其观点或证实其描述。文章内容仅供参考。如本网站转载的作品涉及版权问题,请与本网站联系进行删除处理。
将本文分享到

还在自己查房产知识?快找世联咨询师一对一沟通吧!

免费咨询

楼市变化多端?找不到心仪的楼盘? 世联集,专业为您服务

  •  获取验证码

合肥买房交流群(

138****8965已经申请

137****8955已经申请

157****4365已经申请

183****8115已经申请

187****5968已经申请

159****8233已经申请

申请入群

  •  获取验证码
    ×
    •  换一张
免责声明:本站楼盘信息旨在为用户提供更多信息的无偿服务,信息以政府部分登记备案为准。

注册 |登录

完善个人信息

登录 |注册 快捷登录 密码登录

  •  获取验证码
    ×
    •  换一张

找回密码 登录 注册

  •  获取验证码
    ×
    •  换一张

如有问题,可联系客服:0755-33526610

如有问题,可联系客服:0755-33526610

一键预约

  •  获取验证码

置业专家将在2小时内与您联系(8点-23点),请保持电话畅通。

验证提交

一键预约

置业专家将在2小时内与您联系(8点-23点),请保持电话畅通。

修改手机号

  •  获取验证码
    ×
    •  换一张

如当前手机号遗失,请联系0755-33526610进行人工修改

  •  获取验证码
    ×
    •  换一张

如当前手机号遗失,请联系0755-33526610进行人工修改